LEDA COLONA lite on pyöreä valurautatakka, jossa on huippulaadukas luukku tuplalasilla. Takan runko on täysin valurautainen ja saksalainen laatutuote.
Takassa on yllättävän suuri tulipesä takan kokoon nähden.
- Pieni, solakka takka valurautarungolla ja kokolasi-ovella (tuplalasi), laadukas kahva ruostumatonta terästä
- Nimellisteho 6 kW
- Tyyppi: valurautakamiina
Saatavana kolmella eri korkeudella: kahdella, kolmella tai korkea kuudella ylärenkaalla
Kuvaus
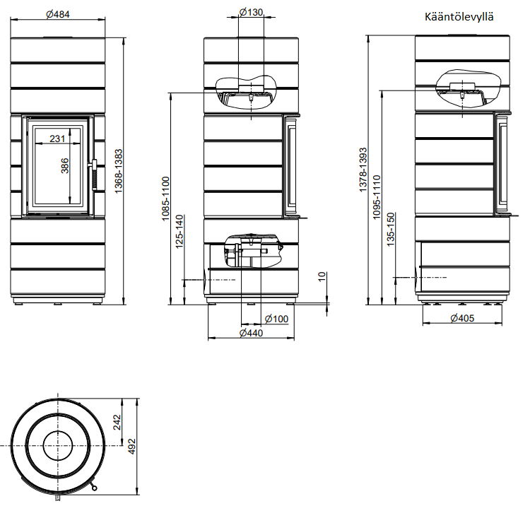
Mitat: K/L/S: 1239 (kahdella renkaalla) 1380 (kolmella renkaalla) 1757 (kuudella renkaalla)/484/484 mm
Hyötysuhde 81%
Energiamerkintäluokka A+
Nimellisteho 6 kW
Hormiliitoshalk. 130 mm (päältäliitos tai takaliitos)
Paino 246/279/321 kg
Turvaetäisyydet palaviin materiaaleihin (sivu/taakse/eteen): 500 mm/500 mm/1100 mm
Puuklapin max. pituus 25 cm
Tulipesän koko K/L/S mm 388 x 220 x 300 mm
Palamisilman säätöventiili
Korvausilmaliitosistukka halk 100 mm
Arviot
Tuotearvioita ei vielä ole.