Uudistetussa mallissa valittavissa tulipesän verhoilun väriksi tumma tai vaalea.
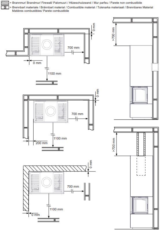
Nordpeis Monaco A on oikean tai vasemman kulman hissiluukulla varustettu kiertoilmatakka. Ilma-aukot on piilotettu jalustaan. Voit sijoittaa takan 0 mm:n suojaetäisyydellä taustaseinää vasten. Takan hissiluukku on miellyttävä käyttää ja se liikkuu sulavasti.
Takan pinta on erikoisbetonia, joka voidaan pinnoittaa asennuksen jälkeen halutulle värisävylle maalaamalla. Näin saat takasta juuri sopivan sinun huoneeseesi!
Lisävarusteena saatavilla halkotila takan viereen.
Takan palamisilmansäädöllä takan tehoa ja palamisen nopeutta voidaan säätää hienosti. Parhaimmillaan tämä takka on kulma-asennuksessa tai esimerkiksi seinän päätyyn, josta avautuu hieno näkymä takkatulelle.
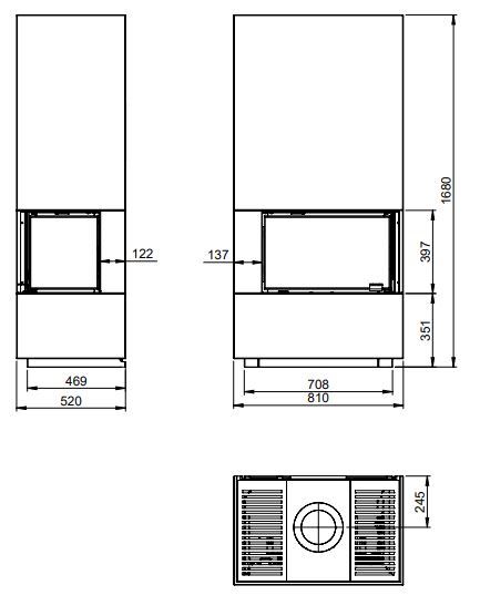
Tekniset mitat löydät sivun alaosasta.
Lisävarusteena saatavilla:
Asennusohjeet löydät TÄSTÄ
Suoritustasoilmoituksen löydät TÄSTÄ

















