Uudessa mallissa valittavana vaalea tai tumma tulipesän verhoilu.
Takassa on IR lasit, jotka vähentävät lämpösäteilyä lasiluukkujen läpi. Tämä parantaa polttoprosessia entistä tehokkaammaksi, ja siirtää lämmöntuotantoa enemmän konvektioon (ilmakierto).
Nordpeis Monaco III matala on hissiluukullinen kolmilasinen kiertoilmatakka laajalla tulinäkymällä. Takan ilma-aukot on piilotettu jalustaan.
Monaco III Matala kuuluu Nordpeisin Monaco -sarjaan. Monaco III Matalaa saa myös komealla penkillisellä versiona: Nordpeis Monaco III matala penkillä
Monaco III Matalaan on saatavissa halkotila, jonka voi sijoittaa takan molemmille puolille.
Tulipesän vuoraus ja luukun sisäpinta pysyvät puhtaina, sillä noki palaa pois palotilan korkeassa lämpötilassa palotekniikkansa ansiosta.
Takan kuori on kevytbetonia, joka voidaan maalata, tai tasoittaa halutunlaisella sävyllä tai pinnoitteella. Monet asiakkaamme haluavat myös jättää alkuperäisen betonipinnoituksen.
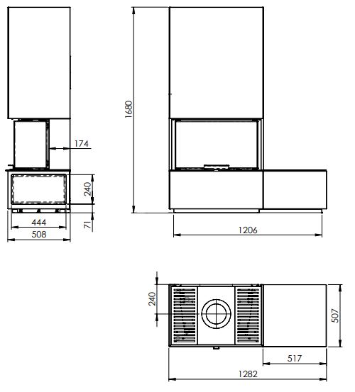
Tekniset mitat löydät sivun alaosasta.
Lisävarusteena saatavilla:
Asennusohjeet löydät TÄSTÄ
Suoritustasoilmoituksen löydät TÄSTÄ















