Nordpeis Praha on kolmilasinen kiertoilmatakka, jossa on suuri tulinäkyvyys ympärille. Takan etuosassa on vakiona käytännöllinen halkotila. Tämä takka on parhaimmillaan suoralle seinälle asennettuna niin, että tulinäkyvyydestä voidaan nauttia laajasti joka puolelta, sillä tulinäkyvys on n. 180°! Praha on vakiokorkeudeltaan 1750mm mutta siihen on saatavilla korotusosa joka korottaa tämän kiertoilmatakan 2380mm korkeaksi! Takan toimitukseen sisältyy suojaseinäsarja jonka avulla takka voidaan asentaa 0mm suojaetäisyydellä (taakse) tulenarkaan materiaaliin. Takan pinta on erikoisbetonia, joka voidaan pinnoittaa asennuksen jälkeen halutulle värisävylle maalaamalla. Näin saat takasta juuri sopivan sinun huoneeseesi!
Mikäli etsit mallia joka on todella samanlainen kuin Praha mutta ilman halkotilaa, niin Nordpeis Cannes on etsimäsi vaihtoehto.
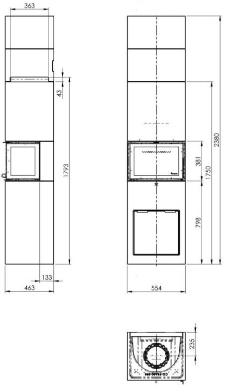
Tekniset mitat löydät sivun alaosasta.
Lisävarusteena saatavilla:
- Tuhkalaatikko
- PowerStone -lämpömakasiini
- Lattian kipinäsuojalasi
- Paloilman liitäntäsarja
- Savuhormin liitossarja
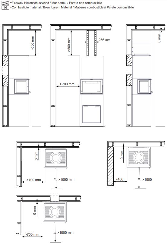
Asennusohjeet löydät TÄSTÄ
Suoritustasoilmoituksen löydät TÄSTÄ





















