Uudistettu Monaco III korkea, jonka korkeutta nostettu 1680mm -> 1850mm ja valittavana on tumma tai vaalea tulipesän verhoilu.
Takassa on IR lasit, jotka vähentävät lämpösäteilyä lasiluukkujen läpi. Tämä parantaa polttoprosessia entistä tehokkaammaksi, ja siirtää lämmöntuotantoa enemmän konvektioon (ilmakierto).
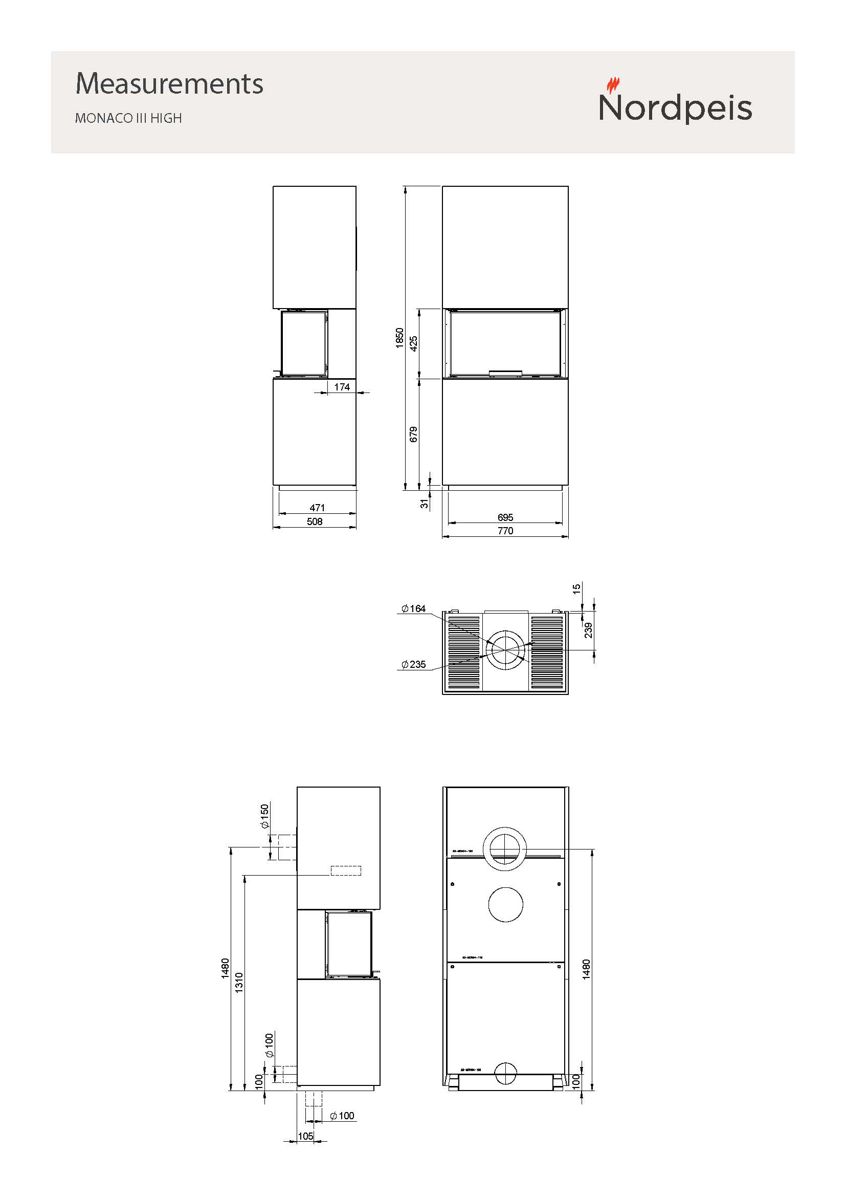
Nordpeis Monaco II korkea on hissiluukullinen kolmilasinen kiertoilmatakka. Ilma-aukot on piilotettu jalustaan. Voit sijoittaa takan 0 mm:n suojaetäisyydellä taustaseinää vasten. Takan hissiluukku on miellyttävä käyttää. Sivulasit voit avata puhdistusta varten.
Takan pinta on erikoisbetonia, joka voidaan pinnoittaa asennuksen jälkeen halutulle värisävylle maalaamalla. Näin saat takasta juuri sopivan sinun huoneeseesi!
Takan palamisilmansäädöllä takan tehoa ja palamisen nopeutta voidaan säätää hienosti. Parhaimmillaan tämä takka on suoran seinän asennuksessa, jossa edessä ja molemmilla sivuilla avautuu hieno näkymä takkatulelle.
Takan tulipesä on vielä erityisen korkealla, jolloin tuli ei jää piiloon kalusteiden taaksekaan.
Lisävarusteena saatavilla:
Asennusohjeet löydät TÄSTÄ
Suoritustasoilmoituksen löydät TÄSTÄ












