Nordpeis Stockholm korkea on suorakaiteen mallinen tyylikäs ja tehokas tulisija. Tämä takka on parhaimmillaan suoralle seinälle asennettuna.
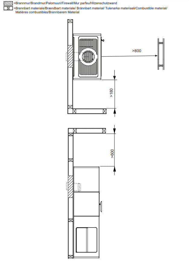
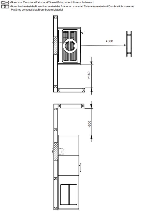
Takan toimitukseen sisältyy suojaseinäsarja jonka avulla takka voidaan asentaa 0mm suojaetäisyydellä (taakse) tulenarkaan materiaaliin.
Stockholm korkea sisältää vakiona kätevän halkotilan, joka on sijoitettu takan alaosaan sivulle viemättä yhtään ylimääräistä tilaa.
Takan pinta on erikoisbetonia, joka voidaan pinnoittaa asennuksen jälkeen halutulle värisävylle maalaamalla. Näin saat takasta juuri sopivan sinun kotiisi!
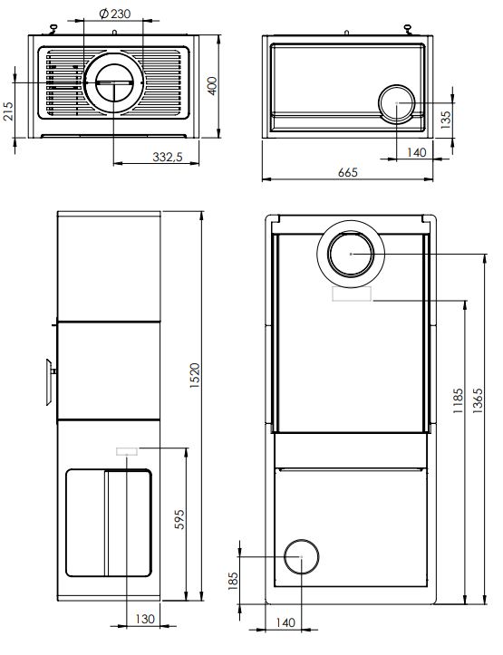
Tekniset mitat löydät sivun alaosasta.
Lisävarusteena saatavilla:
Asennusohjeet löydät TÄSTÄ
Suoritustasoilmoituksen löydät TÄSTÄ













