3170 

Lisää tarjouspyyntöön
Tuoteryhmä Avainsanat ,

Nordpeis ME Pedestal on pylväsjalkainen takka modernilla muotoilulla. Malli saatavissa myös sivulaseilla!
Sopii parhaiten asennettavaksi suoralle seinälle, mutta toimii erinomaisesti myös kulma-asennuksissa

Kauniisti ja puhtaasti palava tuli luo tunnelmaa sekä lämpöä laajalle alueelle. Puhdaspalotekniikka varmistaa, että luukun lasi pysyy puhtaana myös polton aikana.

Nordpeisin ME-sarja on raikas uusi muotoilukokonaisuus markkinoilla. ME-sarjaan kuuluu lukuisia eri ME-malleja sivulaseilla tai ilman.
Nordpeisin tuotesuunnittelija Ingvild Wasbotten Mørk mainitsi, että ME-sarjan ideana on, että jokainen voi löytää mieluisensa kamiinan.

ME-Sarjan kamiinat ovat muodoltaan pyöreitä ja eri mallit mahdollistavat asiakkaiden toiveet. Haluaisitko takan takkauunin kiinnitettäväksi seinään? Ehkä haluaisit sen seisovan lasialustan päällä? Tai miltä katosta roikkuva malli kuulostaisi? ME-Sarja mahdollistaa kaikki nämä!

Nordpeis ME-sarjan kamiinat näet listattuna alla:

Nordpeis ME -sarjan esittelyvideon näet täältä!

 

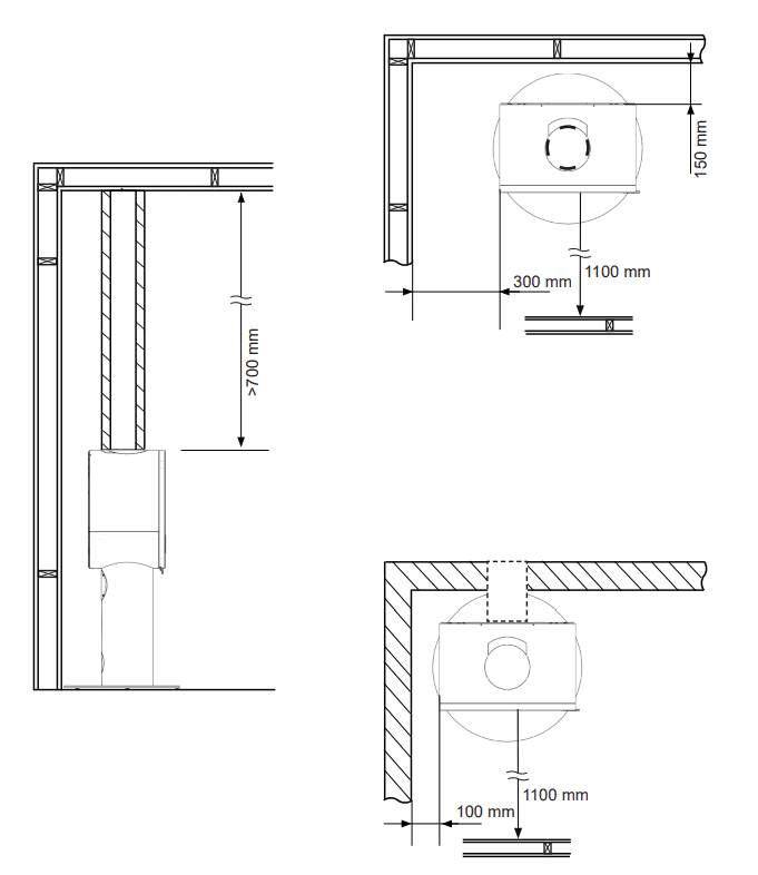
Tekniset mitat löydät sivun alaosasta.

Lisävarusteena saatavilla:

Asennusohjeet löydät TÄSTÄ
Suoritustasoilmoituksen löydät TÄSTÄ

Kuvaus

Nordpeis ME Pedestal

Korkeus (mm) : 1048
Leveys (mm) : 520
Syvyys (mm) : 570
Hormiliitos : Päältä, Takaa
Paino : 88kg
Nimellisteho : 5,8kW
Polttopuiden max.pituus : 37cm
Savukanavaliitäntä : Ø 150 mm
Palamisilmaliitäntä : Kyllä
Hyötysuhde : 79%


Katso TÄSTÄ kuinka Nordpeis-takka sytytetään oikein.

Valmistajan kotisivut

Nordpeis ME -sarjan esittelyvideon näet täältä!