Nordpeis ME Steel on ME-sarjan sivulasiton malli suorakaiteen muotoisella metallijalalla varustettuna.
Sopii parhaiten asennettavaksi suoralle seinälle, mutta toimii erinomaisesti myös kulma-asennuksissa
Kauniisti ja puhtaasti palava tuli luo tunnelmaa sekä lämpöä laajalle alueelle. Puhdaspalotekniikka varmistaa, että luukun lasi pysyy puhtaana myös polton aikana.
Nordpeisin ME-sarja on raikas uusi muotoilukokonaisuus markkinoilla. ME-sarjaan kuuluu lukuisia eri ME-malleja sivulaseilla tai ilman.
Nordpeisin tuotesuunnittelija Ingvild Wasbotten Mørk mainitsi, että ME-sarjan ideana on, että jokainen voi löytää mieluisensa kamiinan.
ME-Sarjan kamiinat ovat muodoltaan pyöreitä ja eri mallit mahdollistavat asiakkaiden toiveet. Haluaisitko takan takkauunin kiinnitettäväksi seinään? Ehkä haluaisit sen seisovan lasialustan päällä? Tai miltä katosta roikkuva malli kuulostaisi? ME-Sarja mahdollistaa kaikki nämä!
Nordpeis ME-sarjan kamiinat näet listattuna alla:
- Nordpeis ME Steel
- Nordpeis ME Steel sivulaseilla
- Nordpeis ME Glass
- Nordpeis ME Glass sivulaseilla
- Nordpeis ME Pedestal
- Nordpeis ME Pedestal sivulaseilla
- Nordpeis ME Ceiling
- Nordpeis ME Ceiling sivulaseilla
- Nordpeis ME Wall
- Nordpeis ME Wall sivulaseilla
- Nordpeis ME Bench
- Nordpeis ME Bench sivulaseilla
Nordpeis ME -sarjan esittelyvideon näet täältä!
Tekniset mitat löydät sivun alaosasta.
Lisävarusteena saatavilla:
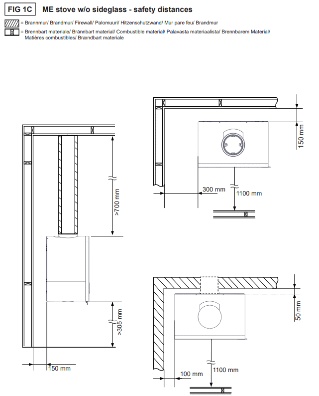
Asennusohjeet löydät TÄSTÄ
Suoritustasoilmoituksen löydät TÄSTÄ
















